7 Bedroom Houseboat moored at Dunstaffnage Marina, near Oban, Highlands, Scotland
Head to the pretty Dunstaffnage marina near Oban in Scotland and you’ll find Seahorse II, an 82 foot steel hulled small houseboat which is perfectly situated for exploring the highlands and islands of West Scotland. Sleeping up to 11 guests, a holiday on this beautiful ship, puts you at the heart of unspoilt coastlines and among pristine environments. Beautiful landscapes and plentiful wildlife abound, this is a wonderful holiday for all the family.
Living right on the water on our quirky small ships allows you the chance to enjoy the sea and the marine environment, whilst having the chance to see lots of Scottish wildlife. Our three quirky small ships are the ex-tall ship St Hilda (maximum 6 people), the ex-Norwegian ferry Seahorse II (maximum 11 people) and the ex-cruising lifeboat Gemini Explorer (maximum 8 people). All of our vessels have been converted to ensure that you will have a unique self-catering experience both in comfort and style in an authentic small ship environment. Please note that with our self-catering option there is no crew aboard and the vessels are not setting sail. From April to October we also offer small ship cruising and wildlife holidays to the Inner and Outer Hebrides, please enquire for info.
This location offers you a chance to explore the very best of the Hebrides and Argyll, and you won’t be disappointed by your beautiful surroundings. Oban is the gateway to the Hebridean isles and from your starting point you will have the opportunity to visit local islands, explore beautiful coastline and beaches, go fly fishing, take wildlife tours, whisky tasting, visit castles and play golf. The youngsters in the group will especially enjoy fishing, kayaking, swimming, snorkelling and rock pooling.
Getting There:
Dunstaffnage Marina is three miles north of Oban and is easy to reach either by car or by public transport. If arriving by car, directions and marina parking instructions will be provided on booking. From Glasgow, you can take a train or a bus to Oban (3 hours).
Nearest Airport:
Oban / Glasgow
Nearest Train Station:
Oban
Nearest Ferry:
Oban
Nearest Beach:
Lots nearby
Nearest Restaurant:
Lots along the way
Interior Details
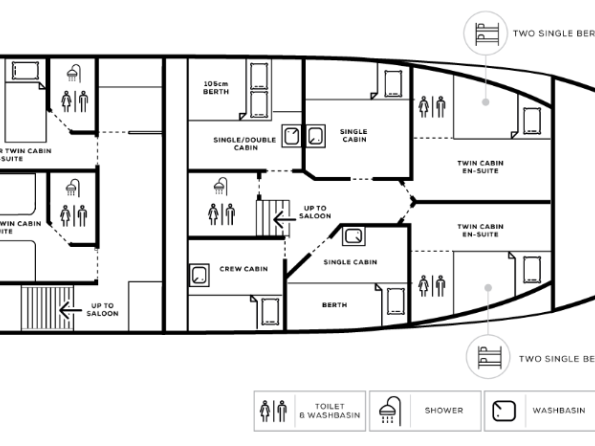
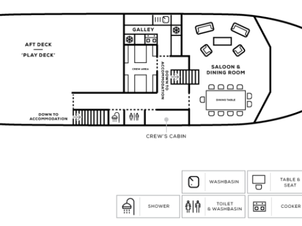
Seahorse II is was built for the Norwegian fjords and life in the northern latitudes. It has 82 feet long with a steel hull, and is air conditioned and heated throughout. It has 11 berths for guests - two double ensuites, two twin semi-ensuites, two singles, and one single/double cabin with a 105cm wide bed. Linen and towels provided. There’s a spacious deck saloon for dining and socialising.
Exterior Details
The spacious aft deck is ideal for alfresco dining. Here there is also plenty of room for your windsurf, kayaks and anything else you need for a great Scottish adventure.
Conditions of Rental
Check in from 2pm and check out no later than 11am. COVID19: We will only have new guests joining 72 hours after the previous guests. During the 72 hours the vessels will be deep cleaned and sanitised. No smoking and no pets please. Under 18 year olds are wholly the responsibility of their parent / guardian at all times. All cabin linen and towels are supplied (not beach towels). Minimum stay three nights.
- Near the Sea
- Riverside / Waterfront
- Village / Rural
- Beach nearby
- Beach within walking distance
- Fishing
- Golf nearby
- Horse Riding
- Walking
- Watersports
- Child Friendly
- Sea View
















